위로가기 버튼
자체기사

236억 들여 신축한 전북도립국악원 두고 교육생들 원성 치솟아 왜?

교육생 쉴만한 공간 없고, '관리 불편' 이유로 탈의실 폐쇄 
식당 겸 매점 공간으로 계획했던 3층 공간 전주대사습보존회 사무실 변경 논의
교육생들 "교육생도 교수진도 모두 불편한 상황" 이라며 분개
국악원 "공간 배치 현재 내부 검토중…교육생들 민원으로 업무처리 늦어지는 것"

image
전북도립국악원 조감도. 전북일보 사진자료 

전북도립국악원이 236억 원을 투입해 신축한 청사 활용을 놓고 교육생들의 원성이 치솟고 있다. 

개관한 지 두 달이 흘렀지만, 교육생들이 쉴만한 공간이 마땅히 없고, 관리마저 제대로 이뤄지지 않기 때문이다.

게다가 애초 식당 겸 휴게공간으로 설계됐던 3층 공간마저 전주대사습보존회 사무실로 용도를 변경하는 논의가 진행되면서 교육생들의 불만은 더욱 커지고 있다. 

image
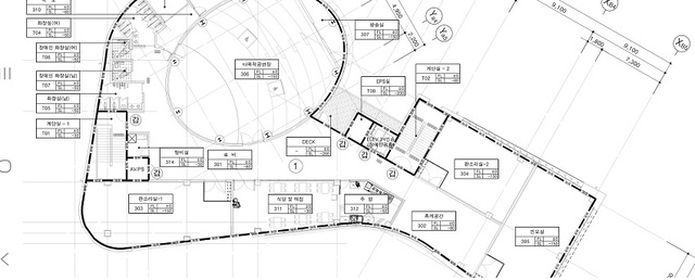
전북도립국악원 설계도. 사진=독자 제공 

4일 전북도립국악원에 따르면 국악원 신청사는 전주시 덕진구 덕진동 현 부지에 총사업비 236억 원을 들여 지하 1층 지상 3층 규모로  지난 7월 1일 개관했다.  2022년 착공해 올해 마무리된 국악원 건물은 연수실 14개 반을 비롯해 다목적 공연장과 회의실, 식당 및 매점 등 부대시설을 갖춰 국악 교육과 공연을 위한 전문 공간으로 조성됐다. 

하지만 계획대로 공간 배치가 이뤄지지 않고, 관리도 소홀해 교육생들의 불만이 이어지고 있다.

도립국악원에서는 무용이나 국악기 교육이 진행된다. 이때 필요한 휴식 공간이 마땅히 없는 상황이다. 더욱이 국악원은 ‘관리하기 어렵다’는 이유로 탈의실까지 폐쇄하면서 교육생들은 화장실을 이용해 옷을 갈아입는 것으로 알려졌다. 

image
당초 식당 겸 매점으로 활용하려 했던 공간/사진=박은 기자 

교육생들의 불편은 이뿐만이 아니다. 국악원은 식당 겸 매점으로 3층 공간을 활용하려 했는데, 최근 사전 고지나 양해도 없이 전주대사습보존회 사무실로 변경하는 논의가 이뤄지는 것으로 알려졌다.

건물 공간 배치는 국악원의 권한이지만 내부에서조차 주먹구구식으로 추진되고 있다는 볼멘소리가 나온다. 

국악원 교육생 A씨는 “하루에 최소 700~800명의 교육생이 국악 교육을 받기 위해서 공간을 찾는데도 국악원은 휴게공간의 필요성을 느끼지 못하는 것 같다”며 “새로 지어서 개관했는데 도대체 건물을 어떻게 활용하는 건지 교육생도 교수진도 모두가 불편한 상황”이라고 분개했다.

더욱이 관리·감독의 책임이 있는 전북도립국악원의 안일한 태도가 도마 위에 오르며 비난을 피하기 어려운 상황이다.  200억 원이 넘는 예산을 투입해 신축한 건물이지만, 개관을 불과 한 달 앞두고 장애물 없는 생활환경(Barrier-Free, 이하 BF) 인증 관련 지적 사항이 발생하면서 보강 공사를 실시하는 촌극도 벌어졌다.  땜질 처방 후 개관했지만, 여전히 기준이나 원칙 없이 청사가 관리 운영되면서 불편은 오롯이 교육생들의 몫이 돼버렸다.

이런데도 국악원은 “민원을 제기하는 교육생들 때문에 업무처리가 늦어지는 것”이라고 변명하는 등 원인을 교육생에게로 돌리는 모습이다.

국악원 관계자는 “전주대사습보존회에서 사무실을 어딜 쓰든 간에 직접적으로 교육생에게 피해를 주지 않는다”면서 “공간에 대한 배치는 행정에서 임의대로 할 수 없다. 현재 내부적으로 검토하고 있다”고 설명했다. 그러면서 “설계를 식당으로 했으니까 무조건 식당으로 해야 한다는 것보다는 현재 시설 안에서 공간을 최대한 자유롭게 활용할 수 있도록 다각도로 고민하고 있다”고 덧붙였다. 

저작권자 © 전북일보 인터넷신문 무단전재 및 재배포 금지
개의 댓글

※ 아래 경우에는 고지 없이 삭제하겠습니다.

·음란 및 청소년 유해 정보 ·개인정보 ·명예훼손 소지가 있는 댓글 ·같은(또는 일부만 다르게 쓴) 글 2회 이상의 댓글 · 차별(비하)하는 단어를 사용하거나 내용의 댓글 ·기타 관련 법률 및 법령에 어긋나는 댓글

0/ 100
최신뉴스

정치일반민주당 전북도당, 지방선거 예비후보 515명 신청...“엄정 심사”

경제일반전북일보 리더스 아카데미 12기 수료식 성황

경제일반[건축신문고] 건축사가 만드는 작지만 큰 변화, 도시 주차의 미래

문학·출판어린 마음을 다독이는 동화, 백명숙 첫 동화집 ‘대단한 소심이’

문학·출판오늘을 이해하기 위한 필독서, ‘최소한의 문학’ 발간